2voice video entry system schematic wiring details ground floor date drawn by 02 apartment allocation altered. Wiring diagrams audio two door phone kit with smyle panel wiring diagrams wiring diagrams note.
Sk 3563 Voip Home Wiring Diagram Free Diagram
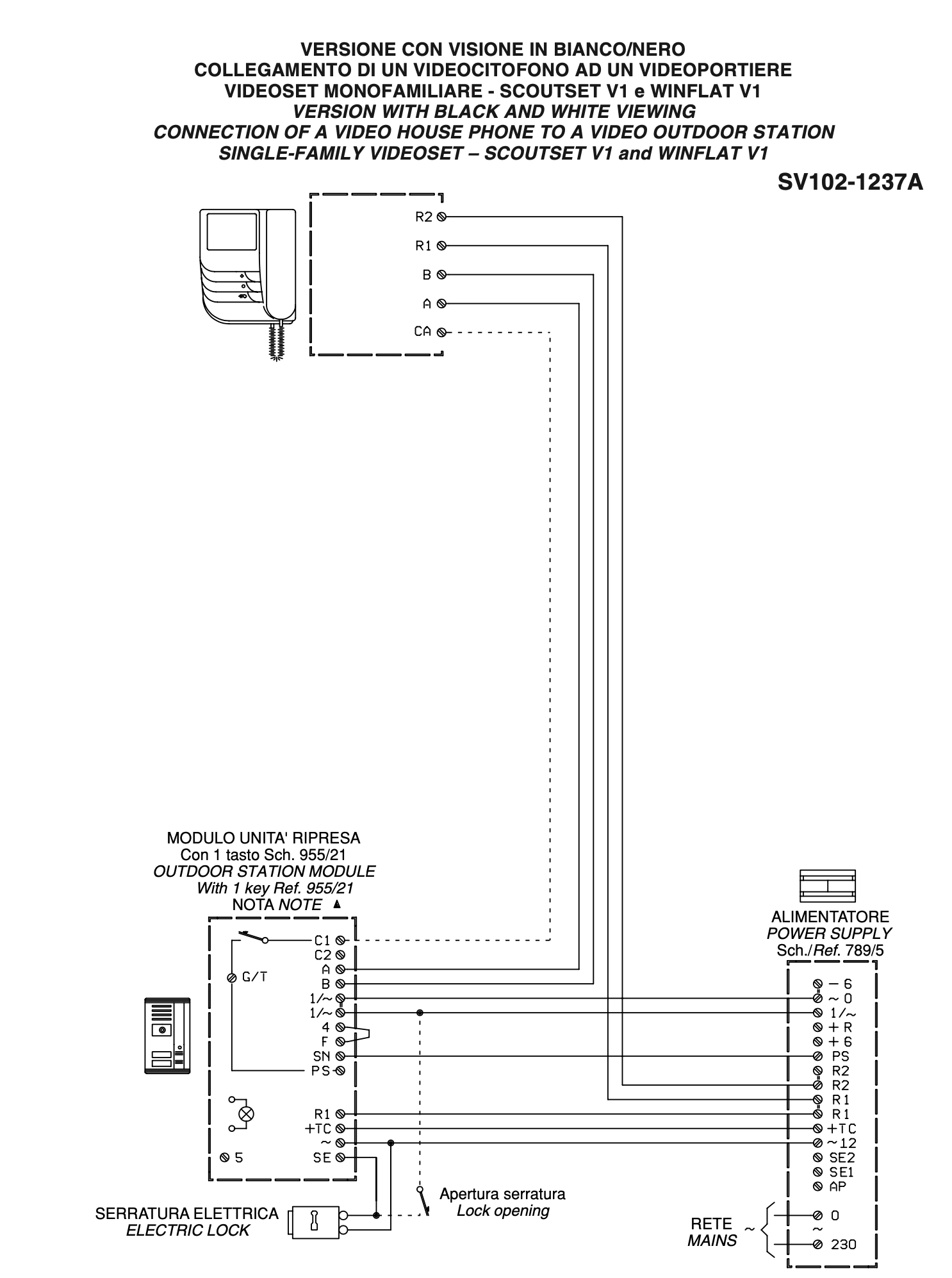
Urmet wiring diagram. 2362014 1st floor title 20 6 2014. To download technical manuals installation diagrams user manualsand softwareyou will be redirected to the english version of our main website. A total of up to 5 devices 1 main door phone and 4 door phones ref112951 or 2 door phones ref112951 with 2 supplementary ringers ref. Urmet 9000230 installation manual. We remind you that to download any of the above you need to be registered and login with your id and password. Urmet ud03944 1 panel system upto 50 monitors or handsets installation manual.
985441 may be installed. Urmet door entry systems download w40 specifications cad icons and more. Warning to download technical manuals installation diagrams user manuals and software you will be redirected to the english version of our main website. All brochures instructions and wiring diagrams pdf srs. Click here to download installation diagrams. Timers relays switchers.
Microsoft word urmet 1130 intercom handset data sheetdoc author. 2 entrance r09 switcher wiring with 801 handsets. Wwwurmetcouk a cat5e 108320 revision drawing no. We remind you that to download any of the above you need to be registered and login with your id and password. Str wiring diagram nh200tv. Ilii 12 0 isv max 6w 66 j 211â 6111028971.
2 entrance r09 switcher with trades button with 801 handsets. Vp100 v prox 100. Urmet 788 52 instructions manual. 3rd floor 2nd floor 108355 a 4th floor mortice b release mains supply aaa a 108355 aaa 108355 aaa a a a a a 108355 aa a 108355 a 5th. Click here to download user manuals. Engineers area staff only videx.
App based technology proves a winner for urmet we work closely with developers consultants architects and installers to meet the specific door entry and access control requirements of a project no matter how big or small. Wiring diagram urmet 1130 basic wiring to 3 flats ac call notes. Urmet 115522 technical brochure.

















