1 way mains gird and 1 way genset generator automatic changeover note. Typical wiring diagram hat220ahat240a automatic transfer switch controller 9 typical wiring diagram hat220a hat240a hat220ahat240a ats controller issue 2011 05 20 version11 page 10 of 11.
Smartgen Ats Wiring Diagram
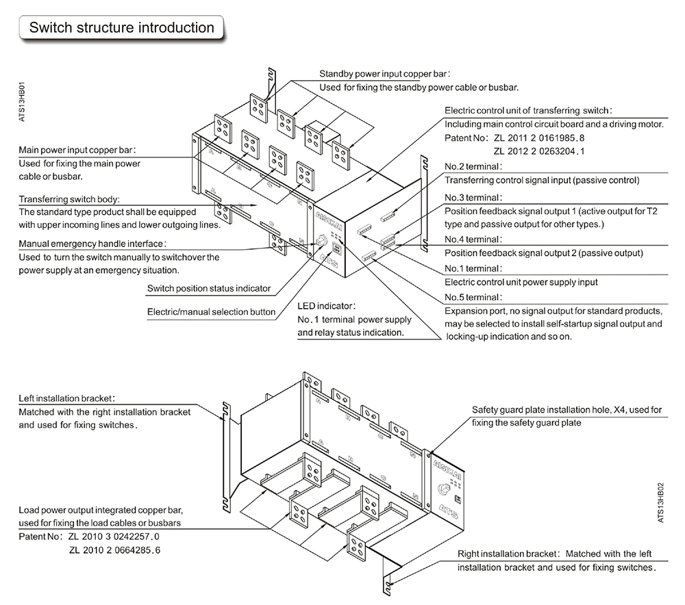
Smartgen ats wiring diagram. The above drawing is suitable for n type and t type switch sgq please refer to sgq instruction for more details about m type switch. Position control ii 3. Smartgen amfats control panel smartgen amfats control panel issue ver11 2012 12 10 page 6 of 10 4 theory and application note. Yes the control module and ats switch are connected seamlessly it is hat552553 that the best combination of electromagnetic ats. Smartgen ats control panel smartgen ats control panel issue version11 2012 12 07 page 7 of 12 42. Hat832 three power ats controller dual ats user manual hat832 three power ats controller dual ats 2018 08 21 version10 page 5 of 61 1 overview hat832 three power ats controller dual ats is intelligent tri supply module with configurable function automatic measurement lcd display and digital communication.
The above drawing is suitable for n type and t type switch sgq please refer to. Two stage switch wiring diagram. Position control i 2. Sgqats automatic transfer switch sgqats automatic transfer switch issue 2014 05 30 version 25 page 12 of 15 5 ats wiring connection diagram 51 n and t type wiring connection diagram note. Is it simple when you see the wiring diagram. Overall and mounting dimensions.
Three stage switch wiring diagram.

















