Cummins pcc2100 controller pdf manual download. For troubleshooting refer to the wiring diagram package that was included with your genset.
Pcc2100 Wiring Diagram
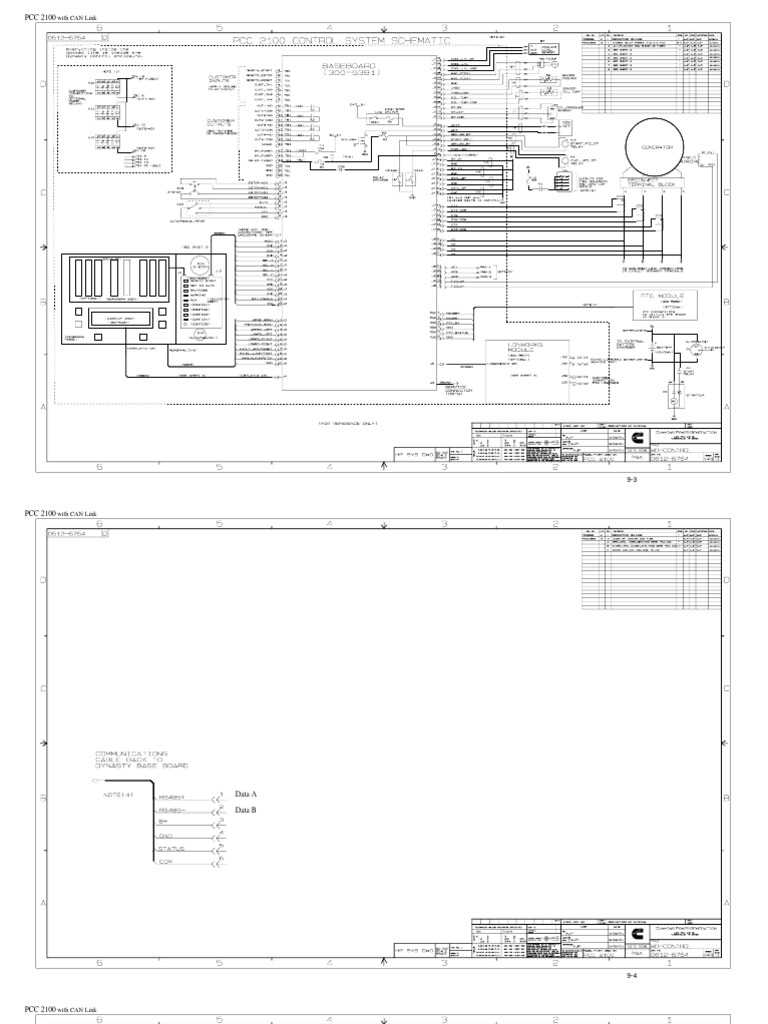
Pcc2100 wiring diagram pdf. Operator and installation manual remote network monitoring powercommand iwatch 100 english 12 2007 9000545 issue 3. View and download omnimetrix cummins pcc2100 installation manual online. 630 2672 sh 2 of 4 rev. Cummins pcc2100 wiring diagram manual review is a very simple task. Cummins pcc2100 wiring table omn wire function termination red power in tb1 17 black ground tb1 20 orange generator running tb1 14 blue common warning tb1 8 pink not in auto tb1 12 brown common shutdown tb1 10 whiteyellow remote startstop tb1 1 whitebrown remote startstop tb1 22. Pcc2100 wiring diagram 13112018 13112018 4 comments on pcc2100 wiring diagram s pcc spec sheet interconnection to the generator set wiring harness.
In the auto mode the generator set can be started with a start signal from a remote device such as an automatic transfer switch. Page 57 this is a representative generic schematicwiring diagram. Cummins pcc2100 wiring diagram manual review is a very simple task. Yet sometimes its so far to get the cummins pcc2100 wiring diagram operator manual book also in various other countries or cities. Control switches and functions offmanualauto mode control switch the not in auto lamp will flash when the control is in the manual or off mode. B modified 10 03 enclosureoptions wiring sheet 1 of 2 redistribution or publication of this document 10 3 by any means is strictly prohibited.
So to help you locate cummins pcc2100 wiring diagram operator manual guides that will definitely support we. 952mb cummins pcc2100 wiring diagram manual as pdf cummins diagram manual wiring pcc2100 as docx wiring diagram manual pcc2100 cummins as pptx cummins pcc2100 wiring diagram manual how easy reading concept can improve to be an effective person. How cummins pcc2100 wiring diagram operator manual many people also need to acquire before driving. Interconnection to the generator set wiring harness. 1577mb cummins pcc2100 wiring diagram manual as pdf pcc2100 diagram wiring manual cummins as docx pcc2100 wiring diagram manual cummins as pptx cummins pcc2100 wiring diagram manual how easy reading concept can improve to be an effective person. Control switches and functions offmanualauto mode control switch the not in.














